Property ID: 1P4957
26 James Street Mount Gambier SA
Contact Agent for Details
-
Offices
-
For Lease
-
456 sqm
-
456 sqm
External Links
-
Documents
Prime Commercial Space for Lease - 26 James Street, Mount Gambier
Malseeds Real Estate is pleased to present for lease this exceptional commercial opportunity in the heart of Mount Gambier's thriving CBD.
Situated on highly sought-after James Street, this property offers high visibility, excellent foot traffic, and proximity to major retailers (Drake's Shopping Centre), cafes, banks, and public parking facilities. It's the perfect setting for businesses looking to capitalise on a central, bustling location.
Property features include:
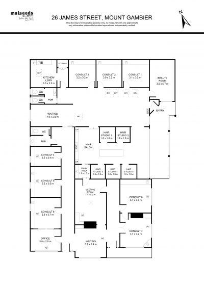
- Multiple sections of the property - Front character section with multiple rooms and rear section which is ultra modern with gorgeous polished concrete and partitians.
- Modern shopfront with large windows ideal for signage and displays
- Spacious open-plan layout suitable for a range of commercial uses (retail, office, service-based business, etc.)
- Private kitchenette and staff amenities
With its unbeatable central location and flexible layout, 26 James Street is ideal for businesses wanting to establish a strong presence in Mount Gambier's commercial hub.
Don't miss this opportunity to secure a prominent space in one of the city's most active streets.
For more information or to arrange a private inspection, please contact Malseeds Real Estate today 08 8724 9999 or email rentals@malseeds.com.au
Particulars:
Council: City of Mount Gambier
Zoning: Urban Activity Centre - UAC
Water Supply Rate: $78.60 approx p/q
Sewerage Rate: $136.77 approx p/q
Disclaimer – The information contained here is gathered from a source that we believe to be reliable. However, we cannot guarantee its accuracy and do not accept any responsibility for its accuracy. All interested parties should rely on their own independent searches and Legal advice.
RLA 115603.
Situated on highly sought-after James Street, this property offers high visibility, excellent foot traffic, and proximity to major retailers (Drake's Shopping Centre), cafes, banks, and public parking facilities. It's the perfect setting for businesses looking to capitalise on a central, bustling location.
Property features include:
- Multiple sections of the property - Front character section with multiple rooms and rear section which is ultra modern with gorgeous polished concrete and partitians.
- Modern shopfront with large windows ideal for signage and displays
- Spacious open-plan layout suitable for a range of commercial uses (retail, office, service-based business, etc.)
- Private kitchenette and staff amenities
With its unbeatable central location and flexible layout, 26 James Street is ideal for businesses wanting to establish a strong presence in Mount Gambier's commercial hub.
Don't miss this opportunity to secure a prominent space in one of the city's most active streets.
For more information or to arrange a private inspection, please contact Malseeds Real Estate today 08 8724 9999 or email rentals@malseeds.com.au
Particulars:
Council: City of Mount Gambier
Zoning: Urban Activity Centre - UAC
Water Supply Rate: $78.60 approx p/q
Sewerage Rate: $136.77 approx p/q
Disclaimer – The information contained here is gathered from a source that we believe to be reliable. However, we cannot guarantee its accuracy and do not accept any responsibility for its accuracy. All interested parties should rely on their own independent searches and Legal advice.
RLA 115603.
Features
- Air Conditioning
- Close to Shops
- Close to Transport
- Disabled Access
- Kitchenette
- Partial Fit Out
- Toilet Facilities
